新闻中心
安装
△注意
控制阀必须严格按照工程要求和控制系统要求进行安装,一旦阀门产生故障,将导致火灾、爆炸、中毒等严重事故和人身伤害。如果阀门组件安装在使用条件超出其规格或相应铭牌给出的极限之范围,则可能会由于压力突然释放而引发的人员及产物伤害或设备损坏。为了避免此类事件发生,需要按照政府或现行工业法规规定及良好的工程实践,安装一个安全阀以进行过压保护。
△小心
订货时,阀门配置的各结构材料是根据特定压力,温度,压力降及控制的流量条件而加以选择,由于某些阀体及阀内件组合材料在其压力降和温度范围方面有一定的限制,因此,在事先没有征询瓦特斯(上海)有限公司有关销售办事处或技术部门意见之前,切勿将这些阀门应用到其它条件。
1.在安装阀门之前,检查阀门和相关设备,看是否有损坏和任何异物确保阀门内部清洁干净,管线中无异物。
2.控制阀组件可以安装在任何方位上,除非受防振准则的限制。可是一般的方式是将执行机构垂直安装在阀门的上方,其它位置可能会倒置阀心和阀笼不均匀的磨损及不适当的操作。对于某些阀门,当执行机构不垂直时,它可能还需要支撑物的支持。 (如图3-1)欲知更详细信息,请向瓦特斯上海有限公司有关销售办事处或技术部门咨询。
图:3-1

控制阀安装位置比较图如图3-2所示,1是最佳安装位置,即垂直安装。5是最差位置,要尽量避免。

3.在管线中安装阀门时,采用公认的配管和焊接方法。在焊接过程中,内部弹性零件可以停留在原位(既不取下它们也不动作它们)。对于检查和维护过程中需要连续操作,则环绕控制阀组件安装一个旁路三通阀。
4.对于泄漏外排型上阀盖结构,取下管堵头,连上排泄管道。若在检查和维护过程中需要连续操作,则环绕控制阀组件安装一个旁路三通阀。
5.填料泄漏可能造成人员伤害。在出厂之前阀门填料已经紧固,然后,可能需要对填料施行重新调整,以满足具体的应用条件。
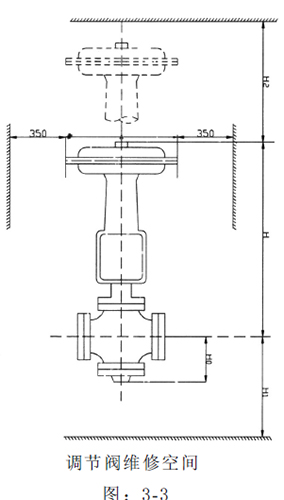
6.控制阀安装时必须考虑到控制阀的现场维修或日常拆卸维修的可能性,安装位置好,易于接近,要考虑维护控制阀所需的空间、间隙和方便性。一般,H1=Ho+300mm, H2=2H0+200mm(如图3-3).
7.若执行机构和阀门分开装运,则参见相应的指导手册中的执行机构章节。
△注意
阀门的执行机构要避免表露在高温环境之中,在温度高于62℃时,膜片、密封件、定位器电子类零件会明显受到高温的影响。
在振动的情况下,由于管道有振动,可能造成管道的移位,因此要求连接到执行机构的气管、液压管和电接头都要有足够的挠性。对塑料管只要求有很小的松驰部分,金属管要经受振动,要求具有较大的挠曲性。电接头除了挠性要求之
外,可根据现场实际情况选择。
根据所用的阀体材料而定,可能需要焊接后热处理。若果真如此,可能会损坏内部弹性和塑性部件及内部金属部件。热配合件各螺纹连接也可能松动。一般地说,如果要进行焊接后热处理,则应该取下所有的阀内件。欲知更详细信息,请向瓦特斯上海有限公司有关销售办事处或技术部门咨询。
